Skip to main content

Overview

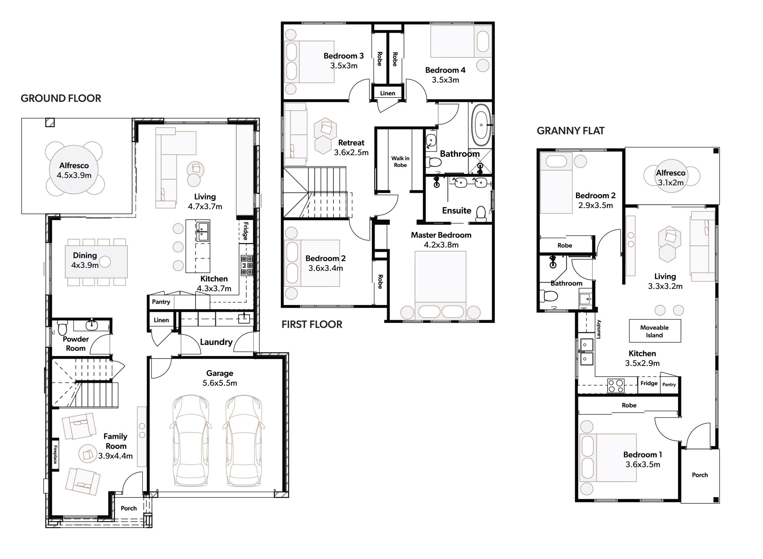
Area Icon 264.4m² Bedroom Icon 4 Bathroom Icon 3 Garage Icon 2 Area Icon 324.5m² Bedroom Icon 4+2 Bathroom Icon 2.5+1 Garage Icon 2

The Sanctuary 27 is a classically styled, 4 bedroom home with a double garage and multiple living areas for entertaining and growing families. Featuring ample storage and gorgeous, modern fixtures this is a wonderful inspiration for a family home. Various facades and arrangements available.

There is also a matching granny flat design on display which is ideal for either investment, extra space/accommodation or a home office/studio.

The Sanctuary Dual Key is a house and granny flat that features a 4 bedroom home with double garage, multiple living areas and ample storage options. The separate Granny Flat features two bedrooms, kitchen, living and alfresco. You can also build just the 4 bedroom home by itself but best of all this entire home can customised to suit your needs!

Dimensions

House Area
264.4m²
Width
11m
Length
16.9
Family
3.9 x 4.4m
Dining
4 x 3.9m
Kitchen
4.3 x 3.7m
Living
4.7 x 3.7m
Retreat
3.6 x 2.5m
Master Bedroom
4.2 x 3.8m
Bedroom 2
3.6 x 3.4m
Bedroom 3
3.5 x 3m
Bedroom 4
3.5 x 3m
Alfresco
4.5 x 3.9m

Dimensions

House Area
324.5m²
Width
16.3m
Length
16.9
Family
3.9 x 4.4m
Dining
4 x 3.9m
Kitchen
4.3 x 3.7m
Living
4.7 x 3.7m
Retreat
3.6 x 2.5m
Master Bedroom
4.2 x 3.8m
Bedroom 2
3.6 x 3.4m
Bedroom 3
3.5 x 3m
Bedroom 4
3.5 x 3m
Alfresco
4.5 x 3.9m
Granny Flat - Living
3.3 x 3.2m
Granny Flat - Kitchen
3.5 x 2.9m
Granny Flat - Bedroom 1
3.6 x 3.5m
Granny Flat - Bedroom 2
2.9 x 3.5m
Granny Flat - Alfresco
3.1 x 2m