Skip to main content

Overview

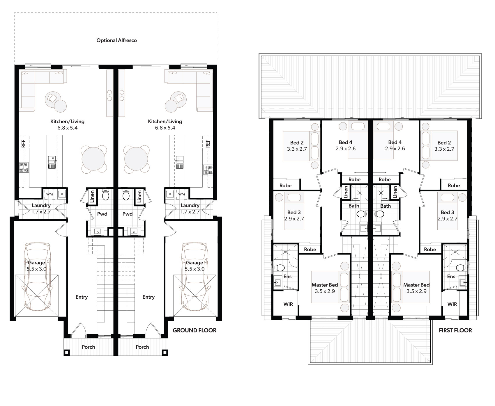
Area Icon 318m² Bedroom Icon 8 Bathroom Icon 5 Garage Icon 2 Area Icon 382m² Bedroom Icon 8 Bathroom Icon 5 Garage Icon 2

The Carlton 34 is a great duplex for Knock Down Rebuilds. Take advantage of having two properties on your site and have the option to live in one and rent the other!

  • Gallery Kitchen
  • Powder Room
  • Large Entry
  • Open Plan Living
  • Master Bedroom
  • Convert a bedroom into a study
  • Garage
  • Optional Alfresco

The Carlton 41 is a great duplex for Knock Down Rebuilds. Take advantage of having two properties on your site and have the option to live in one and rent the other!

  • Kitchen with Walk-in Pantry
  • Powder Room
  • Large Entry
  • Open Plan Living
  • Master Bedroom
  • Convert a bedroom into a study
  • Garage
  • Optional Alfresco

Dimensions

House Area
318m²
Width
12.1m
Length
16.7m
Kitchen/Living
6.8 x 5.4 m
Master bedroom
3.5 x 2.9 m
Bed 2
3.3 x 2.7 m
Bed 3
2.9 x 2.7 m
Bed 4
2.9 x 2.6 m
Garage
5.5 x 3 m

Dimensions

House Area
382m²
Width
13.1m
Length
16.7
Kitchen
5.2 x 2.4
Living
6.8 x 3.5
Master Bedroom
3.5 x 3.6
Bedroom 2
3.0 x 3.1
Bedroom 3
3.0 x 3.1
Bedroom 4
3.2 x 3.1